TETRAGON repräsentative Büroflächen im CBD

60329 Frankfurt, Bürofläche zur Miete

Objektdaten

  • Objekt ID
    MRE 920
  • Objekttypen
    Büro/Praxis, Bürofläche
  • Adresse
    60329 Frankfurt (Bahnhofsviertel)
  • Etage
    1
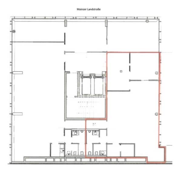
  • Freie Bürofläche
    118,37 m²
  • Teilbar ab
    118,37 m²
  • Heizungsart
    Zentralheizung
  • Befeuerung
    Fernwärme
  • Baujahr
    2004
  • Verfügbar ab
    sofort
  • Provision
    Provisionsfrei für den Mieter
  • Miete pro m²
    21,00 EUR
  • Nebenkosten
    7,50 EUR

Ausstattung

- Moderne, zeitlose Glasfassade
- Repräsentativer Eingangsbereich
- Zwei Personenaufzüge
- Buchbarer Konferenzsaal im Souterrain
- Öffenbare, bodentiefe Fenster
- Sonnenschutzverglasung
- Kühlung
- Voll ausgestattete Teeküchen
- Flexible Raumaufteilung
- Hohlraumboden mit Doppelbodentrassen
- Elektronisches Schließsystem
- Achsmaß ca. 1,35 m
- Raumhöhe ca. 2,84 m
- Raumtiefe ca. 5,40 m

Energieausweis

  • Endenergie­verbrauch
    110,00 kWh/(m²·a)
0 25 50 75 100 125 150 175 200 225 250+ H G F E D C B A A+ H G F E D C B A A+ Endenergieverbrauch Strom 85,00 kWh/(m²·a)

Lage

Das Gebäude befindet sich in verkehrsgünstiger Lage, mitten im CBD von Frankfurt nahe den Zentralen von DZ- und Deutsche Bank. Der Hauptbahnhof ist unmittelbar zu erreichen ebenso wie Alte Oper und Innenstadt. Sowohl mit der S-Bahn als auch mit dem PKW beträgt die Fahrzeit zum Flughafen ca. 15 Minuten. Mehrere Hotels in verschiedenen Kategorien sowie die Messe befinden sich in der Nachbarschaft. Zahlreiche Einkaufsmöglichkeiten wie z.B. ein Supermarkt und Gastronomie sind im unmittelbaren Umfeld vorhanden.

Sie sehen gerade einen Platzhalterinhalt von Google Maps. Um auf den eigentlichen Inhalt zuzugreifen, klicken Sie auf die Schaltfläche unten. Bitte beachten Sie, dass dabei Daten an Drittanbieter weitergegeben werden.

Mehr Informationen

Objekt­beschreibung

Beschreibung

Der markante Solitär Tetragon im Herzen Frankfurts besticht durch seine dreiseitige, bodentiefe Glasfassade, die dem Gebäude einen unverwechselbaren Charakter verleiht. Der großzügige und einladende Eingangsbereich führt über eine Treppe zu einem flexibel nutzbaren Konferenzraum im Souterrain. Zwei Personenaufzüge erschließen alle Etagen. Die Ausstattung ist hochwertig und modern: raumhohe Fenster mit öffenbaren Elementen, eine effiziente Kühlung, Hohlraumboden sowie Stehleuchten sorgen für eine angenehme Arbeitsatmosphäre. Die Raumhöhe beträgt ca. 2,84 m.

Sonstige Informationen

Ist es immer noch nicht das passende Objekt? Und ist es für Sie zu zeitaufwendig nach weiteren Flächen zu suchen, weil Sie wirklich Wichtigeres zu tun haben? Dann sollten  Sie uns unbedingt anrufen. Wir übernehmen eine Vorselektion passender Flächen und erstellen auf Wunsch gemeinsam mit Ihnen ein detailliertes Suchprofil. Das erspart Ihnen und Ihren Mitarbeitern nicht nur viel Arbeit, sondern auch eine Menge Zeit. Gerne beraten wir Sie unverbindlich und freuen uns auf Ihren Anruf!

Kontaktdaten

Direktanfrage

* Pflichtangaben
 SSL-verschlüsselt

Weitere Einheiten in diesem Objekt

Moderne Büroflächen im Bankenviertel

60329 Frankfurt, Bürofläche zur Miete
Objekt ID:
MRE 3343
Freie Bürofläche:
333 m²
Teilbar ab:
333 m²
Verfügbar ab:
sofort
Miete pro m²:
26,00 EUR
Provision
Provisionsfrei für den Mieter
Moderne Büroflächen im Bankenviertel, 60329 Frankfurt, Bürofläche zur Miete
Top-Objekt

Moderne Büroflächen im Bankenviertel

60329 Frankfurt, Bürofläche zur Miete
Objekt ID:
MRE 922
Freie Bürofläche:
333 m²
Teilbar ab:
333 m²
Verfügbar ab:
sofort
Miete pro m²:
25,00 EUR
Provision
Provisionsfrei für den Mieter

TETRAGON repräsentative Büroflächen im CBD

60329 Frankfurt, Bürofläche zur Miete
Objekt ID:
MRE 920
Freie Bürofläche:
118,37 m²
Teilbar ab:
118,37 m²
Verfügbar ab:
sofort
Miete pro m²:
21,00 EUR
Provision
Provisionsfrei für den Mieter
Immobiliendaten-Import und Darstellung für WordPress: WP-ImmoMakler
Nach oben