Gepflegte Büroetagen mitten in der City

60313 Frankfurt, Bürofläche zur Miete

Objektdaten

  • Objekt ID
    MRE 3324
  • Objekttypen
    Büro/Praxis, Bürofläche
  • Adresse
    60313 Frankfurt (Innenstadt)
  • Etage
    4
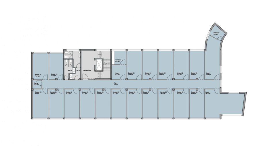
  • Freie Bürofläche
    550 m²
  • Teilbar ab
    170 m²
  • Heizungsart
    Zentralheizung
  • Befeuerung
    Öl
  • Baujahr
    1961
  • Verfügbar ab
    n.Ausbau
  • Stellplätze gesamt
    6
  • Provision
    Provisionsfrei für den Mieter
  • Miete pro m²
    22,00 EUR
  • Nebenkosten
    3,50 EUR

Ausstattung

- Personenaufzug
- Hohlraum-/Doppelboden, teilweise Brüstungskabelkanäle
- Klimatisierung
- BAP-gerechte Beleuchtung
- außenliegender Sonnenschutz, elektr.
- innenliegender Blendschutz, manuell
- Mehrheit der Fenster öffenbar
- getrennte Sanitäranlagen
- Teeküche
- hauseigene Tiefgarage

Energieausweis

  • Endenergie­verbrauch
    57,90 kWh/(m²·a)
0 25 50 75 100 125 150 175 200 225 250+ H G F E D C B A A+ H G F E D C B A A+ Endenergieverbrauch Strom 107,20 kWh/(m²·a)

Lage

Die Zeil ist bekannt als die längste Einkaufsmeile Deutschlands. Mit dem MyZeil und dem dazu gehörigen JW Marriott-Hotel hat die Lage ein weiteres Highlight dazu gewonnen. Neben den hervorragenden Einkaufsmöglichkeiten steht in der unmittelbaren Nachbarschaft ein umfangreiches und abwechslungsreiches Angebot zahlreicher Gastronomiebetriebe zur Verfügung. Dank der unmittelbar am Objekt liegenden Station Konstablerwache ist der Anschluss an den ÖPNV hervorragend, alle S-Bahnen und mehrere U-Bahn-Linien bieten beste Anbindung. Mit dem PKW gelangt man über die Alte Brücke die A 661 am Kaiserlei oder auch den Flughafen.

Sie sehen gerade einen Platzhalterinhalt von Google Maps. Um auf den eigentlichen Inhalt zuzugreifen, klicken Sie auf die Schaltfläche unten. Bitte beachten Sie, dass dabei Daten an Drittanbieter weitergegeben werden.

Mehr Informationen

Objekt­beschreibung

Beschreibung

Das 6-geschossige Büro- und Geschäftshaus wurde im Jahr 2013 umfassend modernisiert und präsentiert sich heute in einem gepflegten, zeitgemäßen Zustand. Die Ausstattung entspricht modernen Büroanforderungen und umfasst unter anderem einen Hohlraumboden, Klimatisierung, außenliegenden Sonnenschutz mit zusätzlichem innenliegenden Blendschutz sowie eine BAP-gerechte Beleuchtung.
Die vakante Büroetage kann vollständig nach den Anforderungen des zukünftigen Mieters ausgebaut werden. Die Sanitärbereiche sowie die Teeküche werden in diesem Zuge neu hergestellt.
Die Miete beträgt € 17,00/m² zzgl. MwSt. im Ist-Zustand bzw. ab € 22,00/m² zzgl. MwSt., abhängig vom Umfang des vereinbarten Mieterausbaus.
Es können bis zu 16 Kfz-Stellplätze in der hauseigenen Tiefgarage zu jeweils € 180,00 monatlich zzgl. MwSt. angemietet werden.

Sonstige Informationen

Ist es immer noch nicht das passende Objekt? Und ist es für Sie zu zeitaufwendig nach weiteren Flächen zu suchen, weil Sie wirklich Wichtigeres zu tun haben? Dann sollten  Sie uns unbedingt anrufen. Wir übernehmen eine Vorselektion passender Flächen und erstellen auf Wunsch gemeinsam mit Ihnen ein detailliertes Suchprofil. Das erspart Ihnen und Ihren Mitarbeitern nicht nur viel Arbeit, sondern auch eine Menge Zeit. Gerne beraten wir Sie unverbindlich und freuen uns auf Ihren Anruf!

Kontaktdaten

Direktanfrage

* Pflichtangaben
 SSL-verschlüsselt

Weitere Einheiten in diesem Objekt

Gepflegte Büroetagen mitten in der City

60313 Frankfurt, Bürofläche zur Miete
Objekt ID:
MRE 3325
Freie Bürofläche:
550 m²
Teilbar ab:
170 m²
Verfügbar ab:
n.Ausbau
Miete pro m²:
22,00 EUR
Provision
Provisionsfrei für den Mieter

Gepflegte Büroetagen mitten in der City

60313 Frankfurt, Bürofläche zur Miete
Objekt ID:
MRE 3324
Freie Bürofläche:
550 m²
Teilbar ab:
170 m²
Verfügbar ab:
n.Ausbau
Miete pro m²:
22,00 EUR
Provision
Provisionsfrei für den Mieter

Gepflegte Büroetagen mitten in der City

60313 Frankfurt, Bürofläche zur Miete
Objekt ID:
MRE 3323
Freie Bürofläche:
550 m²
Teilbar ab:
170 m²
Verfügbar ab:
n.Ausbau
Miete pro m²:
22,00 EUR
Provision
Provisionsfrei für den Mieter
Moderne Bürofläche an der Konstabler Wache, 60313 Frankfurt, Bürofläche zur Miete
Top-Objekt

Moderne Bürofläche an der Konstabler Wache

60313 Frankfurt, Bürofläche zur Miete
Objekt ID:
MRE 2312
Freie Bürofläche:
550 m²
Teilbar ab:
170 m²
Verfügbar ab:
n.Ausbau
Miete pro m²:
22,00 EUR
Provision
Provisionsfrei für den Mieter
Immobiliendaten-Import und Darstellung für WordPress: WP-ImmoMakler
Nach oben