Occiens – Repräsentative Büroetage in Bestlage

60325 Frankfurt am Main, Bürofläche zur Miete

Objektdaten

  • Objekt ID
    MRE 964
  • Objekttypen
    Büro/Praxis, Bürofläche
  • Adresse
    60325 Frankfurt am Main (Westend)
  • Etage
    3
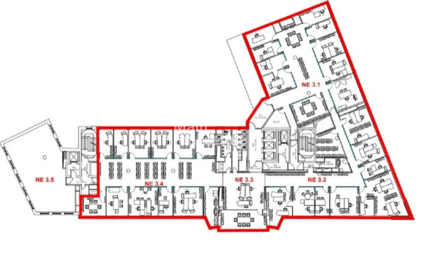
  • Freie Bürofläche
    1.360,90 m²
  • Teilbar ab
    1.360,90 m²
  • Heizungsart
    Zentralheizung
  • Befeuerung
    Gas
  • Baujahr
    2011
  • Verfügbar ab
    01.01.2027
  • Provision
    Provisionsfrei für den Mieter
  • Miete pro m²
    37,50 EUR
  • Nebenkosten
    7,50 EUR

Ausstattung

- Zweigeschossige Eingangshalle- Kühlung / Wärmedämmverbundsystem- Hohlraumboden mit Doppelbodentrasse- Außenliegender, elektrischer Sonnenschutz, raumweise steuerbar- BAP-gerechte Beleuchtung- flexible Raumaufteilung- Lichte Raumhöhe Regelgeschoss ca. 3,10 m- Achsmaß ca. 1,35 m- hauseigene Tiefgarage

Energieausweis

  • Endenergie­verbrauch
    107,10 kWh/(m²·a)
0 50 100 150 200 250 300 350 400+ Stromverbrauch 147,30 kWh/(m²·a) Primärenergieverbrauch 107,10 kWh/(m²·a)

Lage

Das Gebäude befindet sich in bester Lage des Frankfurter Westends, lediglich ca. 5 Gehminuten entfernt von der U-Bahn-Station „Westend“ mit den Linien U6 und U7. In ca. 5 Fahrminuten erreicht man den Hauptbahnhof und mit dem PKW den Autobahnanschluss-West an der Messe. Eine Vielzahl an Restaurants und Einkaufsmöglichkeiten befinden sich in fußläufiger Entfernung.

Sie sehen gerade einen Platzhalterinhalt von Google Maps. Um auf den eigentlichen Inhalt zuzugreifen, klicken Sie auf die Schaltfläche unten. Bitte beachten Sie, dass dabei Daten an Drittanbieter weitergegeben werden.

Mehr Informationen

Objekt­beschreibung

Beschreibung

Das 8-geschossige Bürogebäude wurde im Jahr 2011 errichtet und überzeugt durch seine markante Architektur sowie eine hochwertige Natursandsteinfassade, die die hohe Gebäudequalität unterstreicht. Über die repräsentative, zweigeschossige Eingangshalle werden die Büroetagen komfortabel über vier Personenaufzüge sowie einen Lastenaufzug erschlossen.
Die Ausstattung ist entsprechend hochwertig und umfasst unter anderem eine Kühlung, einen Hohlraumboden mit integrierten Doppelbodentressen sowie außenliegenden, elektrisch gesteuerten Sonnenschutz.

Sonstige Informationen

Ist es immer noch nicht das passende Objekt? Und ist es für Sie zu zeitaufwendig nach weiteren Flächen zu suchen, weil Sie wirklich Wichtigeres zu tun haben? Dann sollten  Sie uns unbedingt anrufen. Wir übernehmen eine Vorselektion passender Flächen und erstellen auf Wunsch gemeinsam mit Ihnen ein detailliertes Suchprofil. Das erspart Ihnen und Ihren Mitarbeitern nicht nur viel Arbeit, sondern auch eine Menge Zeit. Gerne beraten wir Sie unverbindlich und freuen uns auf Ihren Anruf!

Kontaktdaten

Direktanfrage

* Pflichtangaben
 SSL-verschlüsselt

Weitere Einheiten in diesem Objekt

Occiens – Repräsentative Büroetage in Bestlage

60325 Frankfurt am Main, Bürofläche zur Miete
Objekt ID:
MRE 964
Freie Bürofläche:
1.360,90 m²
Teilbar ab:
1.360,90 m²
Verfügbar ab:
01.01.2027
Miete pro m²:
37,50 EUR
Provision
Provisionsfrei für den Mieter
Immobiliendaten-Import und Darstellung für WordPress: WP-ImmoMakler
Nach oben