WestendSky -Exklusive Büroflächen

60325 Frankfurt am Main, Bürofläche zur Miete

Objektdaten

  • Objekt ID
    MRE 1105
  • Objekttypen
    Büro/Praxis, Bürofläche
  • Adresse
    60325 Frankfurt am Main (Westend)
  • Etage
    1
  • Freie Bürofläche
    492,41 m²
  • Teilbar ab
    492,41 m²
  • Heizungsart
    Zentralheizung
  • Befeuerung
    Gas
  • Verfügbar ab
    sofort
  • Stellplätze gesamt
    5
  • Provision
    Provisionsfrei für den Mieter
  • Miete pro m²
    36,50 EUR
  • Nebenkosten
    6,80 EUR

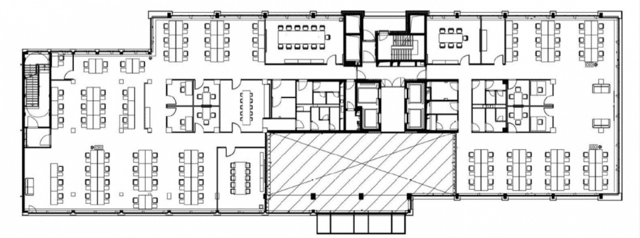
Ausstattung

- Zweigeschossiges Foyer mit Empfang
- 4 Personen- und 1 Lastenaufzug
- Klimatisierung über kombinierte Heiz-/Kühldecke
- Bodentiefe Fenster, öffenbar
- Doppelboden
- CAT-7 Verkabelung
- Flexible Raumaufteilung
- BAP-gerechte Beleuchtung
- Konferenzräume für die Mieter im Erdgeschoss
- Öffentliches Café mit Außenterrasse
- Hauseigene Tiefgarage

Energieausweis

  • Endenergie­bedarf
    80,00 kWh/(m²·a)
  • Endenergie­bedarf Strom
    34,00 kWh/(m²·a)
0 25 50 75 100 125 150 175 200 225 250+ H G F E D C B A A+ H G F E D C B A A+ Endenergiebedarf Strom 34,00 kWh/(m²·a)

Lage

Das Objekt befindet sich in bester Westend-Lage nur wenige Gehminuten von der Alten Oper entfernt.
Dementsprechend ist die Anbindung, sowohl an den ÖPNV als auch den Individualverkehr sehr gut. Verschiedene S- und U-Bahn-Haltestellen sind fußläufig bequem erreichbar. Zahlreiche Restaurants und Cafés, aber auch Einkaufsmöglichkeiten für den täglichen Bedarf befinden sich in direkter Nachbarschaft. Der BAB-Anschluss Frankfurt-Messe ist nur ca. 5 PKW-Minuten entfernt.

Sie sehen gerade einen Platzhalterinhalt von Google Maps. Um auf den eigentlichen Inhalt zuzugreifen, klicken Sie auf die Schaltfläche unten. Bitte beachten Sie, dass dabei Daten an Drittanbieter weitergegeben werden.

Mehr Informationen

Objekt­beschreibung

Beschreibung

Das 13-geschossige Bürohochhaus in der Ulmenstraße, in direkter Nähe zur Bockenheimer Landstraße, bietet einen repräsentativen Unternehmensstandort im Frankfurter Westend. Eine zweigeschossige Lobby mit besetztem Empfang sorgt für einen professionellen ersten Eindruck.
Ein öffentlich zugängliches Bistro im Erdgeschoss sowie exklusiv für Mieter nutzbare Konferenzräume ergänzen das Serviceangebot. Vier Personenaufzüge und ein Lastenaufzug gewährleisten eine komfortable Erschließung der Büroetagen.
Derzeit stehen das 1. und 3. Obergeschoss zur Verfügung.
Das 1. Obergeschoss umfasst ca. 1.250 m², ist teilbar in zwei Mieteinheiten und als Kombibüro bezugsfertig sowie teilweise möbliert ausgebaut – eine kurzfristige Nutzung ist somit möglich.
Zur Ausstattung zählen u. a. bodentiefe, teilweise öffenbare Fenster, Kühlung, dimmbare LED-Beleuchtung, offene Teeküchen und hochwertige Teppichböden.
Kfz-Stellplätze können in der hauseigenen Tiefgarage angemietet werden.

Sonstige Informationen

Ist es immer noch nicht das passende Objekt? Und ist es für Sie zu zeitaufwendig nach weiteren Flächen zu suchen, weil Sie wirklich Wichtigeres zu tun haben? Dann sollten  Sie uns unbedingt anrufen. Wir übernehmen eine Vorselektion passender Flächen und erstellen auf Wunsch gemeinsam mit Ihnen ein detailliertes Suchprofil. Das erspart Ihnen und Ihren Mitarbeitern nicht nur viel Arbeit, sondern auch eine Menge Zeit. Gerne beraten wir Sie unverbindlich und freuen uns auf Ihren Anruf!

Kontaktdaten

Direktanfrage

* Pflichtangaben
 SSL-verschlüsselt

Weitere Einheiten in diesem Objekt

WestendSky -Exklusive Büroflächen

60325 Frankfurt am Main, Bürofläche zur Miete
Objekt ID:
MRE 3287
Freie Bürofläche:
822,41 m²
Teilbar ab:
822,41 m²
Verfügbar ab:
sofort
Miete pro m²:
37,50 EUR
Provision
Provisionsfrei für den Mieter

WestendSky -Exklusive Büroflächen

60325 Frankfurt am Main, Bürofläche zur Miete
Objekt ID:
MRE 1105
Freie Bürofläche:
492,41 m²
Teilbar ab:
492,41 m²
Verfügbar ab:
sofort
Miete pro m²:
36,50 EUR
Provision
Provisionsfrei für den Mieter
WestendSky -Exklusive Büroflächen, 60325 Frankfurt am Main, Bürofläche zur Miete
Top-Objekt

WestendSky -Exklusive Büroflächen

60325 Frankfurt am Main, Bürofläche zur Miete
Objekt ID:
MRE 3286
Freie Bürofläche:
756,72 m²
Teilbar ab:
756,72 m²
Verfügbar ab:
sofort
Miete pro m²:
36,50 EUR
Provision
Provisionsfrei für den Mieter
Immobiliendaten-Import und Darstellung für WordPress: WP-ImmoMakler
Nach oben